проект КС-175
Это современный проект дома с просторной гостиной объединенной с кухней, с гаражом на один автомобиль. В доме 4 спальни и 2 санузла.
Описание проекта




- Характеристики
- Состав проекта
- Как заказать
| Артикул | КС-175 |
| Количество этажей: | 2 |
| Общая площадь: | 175,94 м2 |
| Жилая площадь: | 79,81 м2 |
| Высота потолка: | 2,80 м |
| Количество спален: | 5 |
| Количество санузлов: | 2 |
| Гараж: | нет |
Приобретая проект дома в компании BlockHouse, Вы получаете комплект чертежей - 2 экземпляра, необходимый для проведения строительных работ и беспрепятственного получения разрешения на строительство.
Проект содержит три раздела – Архитектурный, Конструктивный и Инженерный: водоснабжение, отопление, вентиляция, канализация, электроснабжение (приобретается за дополнительную плату) + Пояснительная записка.
1. Архитектурный раздел:
- Общие данные по проекту
- План координационных осей
- Поэтажные кладочные планы
- Поэтажные маркировочные планы с экспликацией помещений
- План кровли
- Разрезы и состав конструкций
- Фасады с ведомостью внешних отделок
- Элементы проемов – спецификация
- Ведомость перемычек – сечения и спецификация
- Экспликация полов
- Объемы основных строительных материалов
- Архитектурные узлы в конструкциях
2. Конструктивный раздел:
- Общие данные по проекту
- Схемы расположения и расчеты фундаментов
- Элементы каркаса – схемы расположения
- Схема расположения перекрытий
- Опоры перекрытия на стены или Узлы армирования
- Элементы кровли – схемы расположения
- Чертежи отдельных элементов, узлы крепления, сечения
- Ведомости расхода стали и бетона
3. Инженерный раздел (приобретается по желанию за дополнительную плату):
Водоснабжение и канализация
- Условные обозначения с общими данными
- Поэтажная система водоснабжения и канализации
- Аксонометрическая схема водоснабжения и канализации
- Узлы и спецификация материалов
Отопление, вентиляция
- Условные обозначения с общими данными
- Система вентиляции
- Система отопления
- Аксонометрическая схема системы отопления
- Тепловая схема
- Спецификация материалов
Электротехнические решения:
- Условные обозначения и общие данные
- Принципиальная схема ВРУ
- План сетей освещения, план силовых сетей
- Схема системы уравнения потенциалов
- Схема повторного контура заземления
- Спецификация материалов
Проект является типовым и не учитывает конкретных условий строительства
Срок изготовления проекта дома составляет от 3 до 30 рабочих дней.
Объем проектной документации – от 50 до 100 страниц А4 и А3, в зависимости от сложности проекта
Мы предлагаем вам несколько удобных способов заказа:
- Оставить заявку на сайте, указав в заявке название проекта
- Позвонить по телефону +375259052277
- Написать на электронную почту info@blockhouse.by
Если вам сложно определиться с проектом, не отчаивайтесь, наши специалисты помогут вам с выбором и предложат проект, от которого вы не сможете отказаться
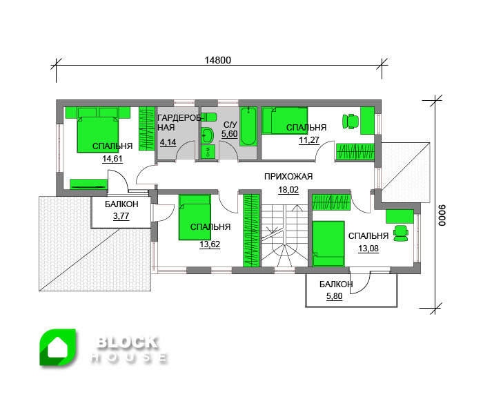
планировка
1 этаж
2 этаж
фасады
Купить архитектурный проект
фотогалерея
ФОтографии с построенных объектов
Благодаря совместной работе с клиентом, обсуждая и согласовывая все тонкости, наши специалисты помогут подобрать подходящий проект для каждого.



другие популярные проекты
ИЗ БЛОКОВ, КИРПИЧА, АРБОЛИТА
Оставьте заявку
Мы с вами свяжемся и проконсультируем по вопросам проектирования и строительства дома